トピックス TOPICS

星川あたりの物件情報

裏庭付き!奥に長~い店舗物件

裏庭付き!奥に長~い店舗物件



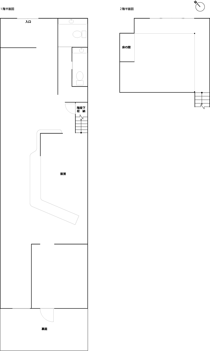
■場 所 本町1丁目
■価 格 10万円
■広 さ 1階82.64㎡ 2階25.03㎡

奥に長い店舗に木目のカウンターが特徴的な飲食店向け物件です。

入り口からは想像できないほど奥に広いです。奥には裏庭もある贅沢な造り。飲食店であればすぐに開業できちゃいます!2階は未整理ですが補修すれば隠し部屋のような使い方も。まさに隠れた物件です!

     

   


まずは目に飛び込んでくるのが長ーい室内にドン!と構えた木目調の長いカウンター!そして所々に和モダン照明たちが雰囲気を演出してくれます。入り口付近は高い天井が望める吹き抜けになっていてされに広さを感じさせてくれます。
奥に進んでいくと裏庭が望める落ち着いた空間が待っています。

     

   


店内にマッチした木製引き戸の奥にはカウンターと同じく木目調の洗面台があり女性に優しい大きな鏡が嬉しいですね。

     

   


2階への階段は厨房の中にあり未改修のままですが約6畳の広間があります。改修してスタッフの休憩場所にするもよし。隠れ部屋のような個室感覚で使うもよし。

【間取り図】

【物件概要】

敷金 賃料の1ヵ月 礼金 賃料の1ヵ月
駐車場 なし 管理費等 なし
仲介手数料 賃料の1ヵ月+消費税 火災保険 入居者保険に加入していただきます
建物構造 木造2階建 築年月 昭和40年
設備 公営水道・都市ガス・本下水 トイレ/水洗2
備考
契約期間 3年 現況 空室
入居日 相談 物件番号 K22
情報公開日
取引様態 媒介

このの情報をSNSでツイート&フォロー!

Instagram_link Facebook_link

〒360-0042埼玉県熊谷市本町1丁目242